廣州梓凈所提供的萬級潔凈棚又叫萬級凈化棚或者簡易無塵室,質量可靠、規格尺寸齊全,廣州梓凈不僅具有精湛的技術水平,更有良好的售后服務和優質的解決方案,歡迎您來電咨詢此萬級潔凈棚與萬級凈化棚產品具體參數及價格等詳細信息。
潔凈棚別名:凈化工作站、凈化棚、無塵操作亭,潔凈工作棚、潔凈房、凈化房、無塵棚、無菌棚、潔凈操作棚、凈化無塵工作棚。
潔凈棚級別等級:百級潔凈棚,千級潔凈棚,萬級潔凈棚,十萬級潔凈棚,三十萬級潔凈棚。
潔凈棚特別適用于電子、微電子、半導體、液晶、醫藥、生物、工程、光學、航天等行業。

萬級潔凈棚又叫萬級凈化棚或者10000級潔凈棚(簡稱:簡易無塵室)潔凈室是為最快速方便建立的一座簡易潔凈房,萬級潔凈棚具備多種潔凈等級及空間搭配可以根據使用需求設計制作,因此其簡便運用彈性大安裝容易且施工期短以及可移性為其主要特點,同時可針對在一般等級的潔凈室中局部地區需要高潔凈度的地方做局部增設以降低成本。
萬級潔凈棚是一種可提供局部高潔凈環境的空氣凈化設備。萬級潔凈棚主要由箱體、風機、初效空氣過濾器、阻尼層、燈具等組成,外殼噴塑。潔凈棚該產品既可懸掛,又可地面支撐,結構緊湊,使用方便。潔凈棚可以單個使用,也可多個連接組成帶狀潔凈區域。

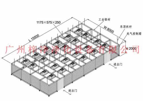
萬級潔凈棚配制:
1、框架:以工業鋁材(或不銹鋼方通、鐵方通噴塑)作為框架穩固、美觀、不生銹、不產塵;
2、防靜電垂簾:四周圍用防靜電垂簾(或鋼化玻璃),防靜電效果好、透明度高、網格清晰、柔韌度好、不變形、不易老化;
3、10000級潔凈棚風機濾網機組FFU:采用離心風機,具有長壽命、低噪聲、免維護、震動小、可無級變速等特性,風機質量可靠,工作壽命長,加上獨特的風道設計,大大提高了風機的效率、降低了噪聲!內部凈化級別可達100-100K級;特別適用于車間內局部凈化級別要求高的區域,如流水線作業區域。
3、內部采用凈化室專用凈化燈,不產塵;

萬級潔凈棚工作原理:
風機從FFU頂部將空氣吸入,經初效過濾器,高效過濾器過濾,過濾后的潔凈空氣在整個出風面以0.45m/s±20%的風速勻速送出到萬級潔凈棚內。形成均流層,使潔凈空氣氣流呈垂直單向流,從而保證了工作區內所要求的潔凈度。

萬級潔凈棚優點:
萬級潔凈棚可單獨使用,也可組合使用。
與土建式或裝配式百級潔凈室相 比,投資少,見效快,安裝簡便,運行費用低。
模塊化結構,提高潔凈度等級容易,擴展性強,且重復利用價值高
萬級潔凈棚移動方便(可安裝萬向輪)。
潔凈棚規格尺寸及技術參數:

潔凈棚影響因素有哪些?
影響潔凈棚的氣流因素很多,如制程設備、人員、潔凈室組裝材、照明器具等,同時對于生產設備上方氣流的分流點,亦應列入考慮因素。
一般操作臺或生產設備等表面的氣流分流點,應設于潔凈室空間與隔墻板間距2/3之處,如此可使作業人員工作時,氣流可從制程區內部流向作業區,而將微塵帶走;若分流點配置在制程區前方,將成為不當的氣流分流,此時大部份的氣流將流至制程區之后,作業員操作所引起的塵埃將被帶到設備后面,工作臺因而將受到污染,良率也勢必降低。
潔凈室內的工作桌等障礙物,在相接處均會有渦流現象發生,相對地在其附近之潔凈度將會較差,在工作桌面鉆上回風孔,將使渦流現象減少最低;組裝材料之選擇是否恰當、設備布局是否完善,亦為氣流是否成為渦流現象之重要因素。
風機從FFU頂部將空氣吸入,經初效過濾器,高效過濾器過濾,過濾后的潔凈空氣在整個出風面以0.45m/s±20%的風速勻速送出到潔凈棚內。形成均流層,使潔凈空氣氣流呈垂直單向流,從而保證了工作區內所要求的潔凈度。
潔凈棚是能快速組建的簡易潔凈室,其具有安裝快速、施工周期短、價格低廉、移動方便等特點,把主要生產工序控制在較小的環境內也是潔凈室設計的更好選擇。
潔凈棚污染源知識及潔凈室發菌量:
發塵量
潔凈棚內的發塵量,來自設備的可考慮通過局部排風排除,不流入室內;產品,材料等在運送過程中的發塵與人體發塵量相比,一般極小,可忽略;由于金屬半壁(彩鋼夾心板)的應用來自建筑表面的發塵也很少,一般占10%以下,發塵主要來自人,占90%左右。在人的發塵量上,由于服裝材料和樣式的改進,發塵絕對量也不斷減少。
A、材質:棉質發塵量最大,以下依次為棉、的確良、去靜電純滌綸、尼龍。
B、樣式:大掛式發塵量最大,上下分裝型次之,全罩型最少;
C、活動:動作時的發塵量一般達到靜止時間3-7倍;
D、清洗:用溶劑洗滌的發塵量降至用一般水清洗的五分之一。 室內維護結構表面發塵量,以地面為準,大約相應8平方米地面時的表面發塵量與一個靜止的人的發塵量相當。

發菌量
潔凈室發菌量主要來自工作人員產生的污染:
1)皮膚:人類通常每四天完成一次皮膚的完全脫換,人類每分鐘脫落約1000片皮膚(平均大小為30*60*3微米)
2)頭發:人類的頭發(直徑約為50~100微米)一直在脫落。
3)口水:包括鈉、酶、鹽、鉀、氯化物及食品微粒。
4)日常衣物:微粒、纖維、硅土、纖維素、各種化學品和細菌。
5)人類靜止和坐立每分鐘將產生10000個大于0.3微米的微粒。
6)人類在頭部和軀干做動作時每分鐘將產生1000000個大于0.3微米的微粒。
7)人類以0.9m/s的速度行走時每分鐘將產生5000000個大于0.3微米的微粒。
分析國外試驗資料可以認為:
(1) 潔凈室內當工作人員穿無菌服時:靜止時的發菌量一般為10-300個/min.人軀體一般活動時的發菌量為 150-1000個/min.人 快步行走時的發菌量為 900-2500個/min.人;
(2) 咳嗽一次一般為 70~700個/ min.人 噴嚏一次一般為 4000~62000個/ min.人;
(3) 穿平常衣服時發菌量 3300~62000個/ min.人;
(4) 無口罩發菌量:有口罩發菌量 1:7~1:14;
(5) 發菌量:發塵量 1:500~1:1000
(6) 手術中人員發菌量 878個/ min.人所以,可知潔凈室內無菌衣人員的靜態發菌量一般不超過300個/ min.人,動態發菌量一般不超過1000個/ min/人,以此作為計算依據是可行的。
廣州梓凈所提供的空氣凈化產品及設備有風淋室,貨淋室,初效過濾器,中效過濾器,高效過濾器、超凈工作臺,潔凈工作臺,傳遞窗,風淋室配件,風淋室控制器,化學過濾器,FFU風機過濾單元,空氣自凈器,潔凈棚,新風柜,過濾柜,通風柜,洗手池,潔凈采樣車,高風效送口等等潔凈室及配套用凈化產品等。無塵車間凈化設備廣泛應用于電子、半導體、生物制藥、食品加工、核工業、汽車制造業,空調暖通業行業和領域等。
梓凈專從凈化設備與凈化工程,無塵車間承建商,無塵車間工程,無塵車間建設,無塵車間潔凈度測試,無塵車間解決方案,百級無塵車間,千級無塵車間,萬級無塵車間,無塵車間標準,無塵車間施工,無塵車間設備,無塵車間設計、無塵車間施工、無塵車間維護,無塵車間亦稱凈化車間或無塵室潔凈室。
梓凈”牌空氣凈化設備產品質量保證:
1、我司出產的”梓凈”牌空氣凈化設備及空氣過濾器產品已獲國內、國際多項產品認證;
2、為滿足客戶對潔凈室的高品質要求,我司生產出廠的每一臺空氣凈化設備都經過我司質檢員的嚴格檢查,符合產品質量標準方可出廠;空氣過濾器都在標準萬級無塵車間內生產、檢測。
3、產品交付驗收完畢后,我司將對貴司及所訂購產品建立獨立的檔案,以便與我司長期的為貴司提供優質、及時的服務。
4、產品包裝:木箱或紙箱包裝;
5、發貨方式:貨運;
6、交貨時間:合同簽訂后我司收到貨款之日起5個工作日內完成生產,3個工作日內到貨;
服務宗旨:
7、公司出產的”梓凈”牌空氣凈化設備及空氣過濾器可提供長期的技術支持;
8、故障受理:省外48小時,省內24小時;
